Beste Kiezlage inmitten von Berlin

Leben am
Stuttgarter Platz

Bezugsfertige Neubau-Eigentumswohnungen mit kleiner Gemeinschaft im grünen Innenhof.

Das Projekt im Überblick

Ihre Eigentumswohnung am Stutti

Inmitten des Charlottenburger Kiez‘, unweit des Stuttgarter Platzes, sind sieben gemütliche Neubau-Eigentumswohnungen entstanden. Die Wohnungen befinden sich im lichtdurchfluteten Haus im Innenhof. Die moderne Holzhybridbauweise sorgt für eine einzigartige Wohnatmosphäre.

7 Eigentums-
wohnungen

4 Zimmer

105 m²
Wohnfläche

Neubau-Erstbezug
Ab 799.900 €

Tiefgaragen-
stellplatz

Grüne Bauweise

Sie haben Fragen, wir Antworten.

    Die Ausstattung im Überblick

    Ruhe, grün, zentral

    • Solarthermieanlage zur Warmwasseraufbereitung
    • Holzhybridbauweise
    • Einbauküche & Gäste-WC
    • Balkon oder Terrasse & Garten
    • Bodentiefe Fenster
    • Aufzug führt direkt in die Wohnung – eine Wohnung pro Etage
    • Tiefgarage

    Die Grundrisse im Überblick

    Kaufen, einziehen & wohlfühlen

    Preis:
    Wohnfläche:
    Zimmer:
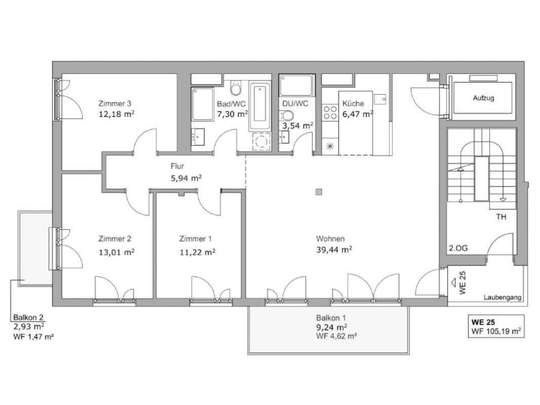
    SP5 Grundriss WE25

    Zum Vergrößern bitte auf das Bild klicken.

    Kaufpreis: 799.900,00 EUR

    Wohnfläche: 105,19 m²

    Zimmer: 4

    Anfragen
    Schließen

    Die Lage im Überblick

    Urbanität & Privatsphäre

    Hier wohnen Sie im Herzen der Stadt, ohne auf Ruhe und Privatsphäre verzichten zu müssen. Eine Eigentumswohnung am Stuttgarter Platz 5 zu besitzen bedeutet, das Beste aus beiden Welten zu genießen: die Energie und Dynamik des urbanen Lebens und die Ruhe sowie den Komfort eines hochwertigen und nachhaltigen Holzhybridbaus. Entdecken Sie das Leben in seiner schönsten Form.

    Nicht verpassen – Ihr neues Zuhause wartet!
    Kontakt aufnehmen

      Besuchen Sie uns vor Ort!

      Kontaktieren Sie uns für einen individuellen Besichtigungstermin.

      Projektadresse

      Stuttgarter Platz 5, 10627 Berlin